MOJDVOR *****
   // FLOORS & RESIDENCES / First floor / Residence D14
Residence  D14 Visualization
 
 
Početna stranicaContactMapa weba
MOJDVOR
for whom
location
3D visualization
at construction site
questions/answers
 
FLOORS & RESIDENCES
 
CONTACT/SALE
reserved/sold
 
PERSONAL TOUCHES
relax zone
at service
palace ala carte
warmth and safety
 
MOJDVOR LIFESTYLE
effects your dna
luxurious living
the perfect address
green peace of mind
inteligent building
signature arhitecture
urban vision
 
MOJDVOR imPRESSion
wisdom of the energy
home style magazine
editorials
photo gallery
events
press
 
 
SITE MAP


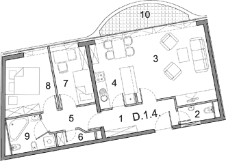
Plan D14.pdf (110 kb) * for details, move the mouse
   over the image
Floorplan, 1st floor.pdf (455 kb)


Num Description Flooring Coefficient Area m2
  1 ENTRANCE HALLWAY parquetry 7,10 x 1 7,10
  2 TOILET ceramics 2,01 x 1 2,01
  3 DINING + LIVING parquetry 24,88 x 1 24,88
  4 KITCHEN ceramics 4,73 x 1 4,73
  5 HALLWAY parquetry 4,20 x 1 4,20
  6 LARDER ceramics 1,57 x 1 1,57
  7 CHILDREN ROOM parquetry 7,52 x 1 7,52
  8 MASTER BEDROOM parquetry 10,15 x 1 10,15
  9 BATHROOM ceramics 4,90 x 1 4,90
10 BALCONY stone 5,71 x 0,5 2,86
Altogether 69,92


Other type 28 residences
Name Floor Status
 D24  2nd floor -
 D14  1st floor -
Total type 28 residences: 2


  Position of the residence on the 1st floor

Pozicija Residencea na katu

General info D14

Rooms: 3-room
Overall area: 69,92 m2
Floor: 1
Exposure: D
Type: 28
Status: -
Yes, I'm interested in that residence!


One of a kind
  • the unique location near the major and finest city sites 
  • the unique architecture as a permanent guarantee for recognition
  • modern design and flats layout with large glass surfaces and terraces
  • common areas decorated with luxurious and unique greenery, glass dome and panoramic glass elevators
  • uncompromising construction quality, looks and equipment
  • tthe most energy-efficient building in the Republic of Croatia (the first energy certificate)
  • over 3-meter ceiling heights in main living areas (3.05 m versus average ceiling height of 265 cm)
  • classical reinforced-concrete structure with high-quality materials and double- and triple-insulation from noise and moisture
Equipment
  • world-class sanitary ware
  • bathroom with massage bathtub (jacuzzi)
  • combination of world-class stones and ceramics
  • world-class parquetry
  • anti-theft and resistant front door
  • solid wood interior doors
  • high class exterior joinery
  • high quality aluminum blinds
  • central heating and cooling using the city's steam
  • floor heating system
  • intelligent apartment technology (infrastructure & moduls for a wide range of solutions)
  • etc.
Even more
  • possibility to buy a storage (more than 1 per residence),
  • possibility to buy a parking place (1 or more per residence),
  • entry from the underground parking area
  • video surveillance of parking lots and building environment
  • round-the-clock supervision service with gatekeepers/guardians
  • common areas for the joint meetings, gatherings, birthday celebrations and other occasions
Personal touches  
top  
FLOORS
 9 flr
 8 flr
 7 flr
 6 flr
 5 flr
 4 flr
 3 flr
 2 flr
 1 flr
  A11
A12
A13
A14
A15
B11
B12
B13
B14
C11
C12
C13
C14
C15
D11
D12
D13
D14
D15
D16
 0 flr
-1 flr
-2 flr
-3 flr
 
Residence D14 Visualization
 
       
  Design - Palete & WEB Marketing