MOJDVOR *****
   // FLOORS & RESIDENCES / Fourth floor / Residence A43
Residence A43 Visualization
 
 
Početna stranicaContactMapa weba
MOJDVOR
for whom
location
3D visualization
at construction site
questions/answers
 
FLOORS & RESIDENCES
 
CONTACT/SALE
reserved/sold
 
PERSONAL TOUCHES
relax zone
at service
palace ala carte
warmth and safety
 
MOJDVOR LIFESTYLE
effects your dna
luxurious living
the perfect address
green peace of mind
inteligent building
signature arhitecture
urban vision
 
MOJDVOR imPRESSion
wisdom of the energy
home style magazine
editorials
photo gallery
events
press
 
 
SITE MAP


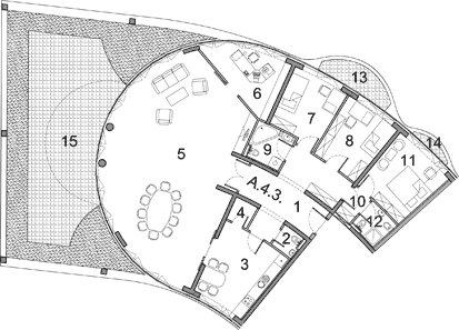
Plan A43.pdf (365 kb) * for details, move the mouse
   over the image
Floorplan, 4th floor.pdf (540 kb)


Num Description Flooring Coefficient Area m2
  1 ENTRANCE HALLWAY parquetry 17,97 x 1 17,97
  2 TOILET ceramics 1,65 x 1 1,65
  3 KITCHEN ceramics 15,33 x 1 15,33
  4 LARDER ceramics 1,62 x 1 1,62
  5 DINIING + LIVING parquetry 74,16 x 1 74,16
  6 STUDY ROOM parquetry 11,49 x 1 11,49
  7 CHILDREN ROOM 1 parquetry 11,15 x 1 11,15
  8 CHILDREN ROOM 2 parquetry 11,54 x 1 11,54
  9 KITCHEN ceramics 4,30 x 1 4,30
10 HALLWAY parquetry 1,88 x 1 1,88
11 MASTER BEDROOM parquetry 13,15 x 1 13,15
12 MASTER BATHROOM ceramics 3,04 x 1 3,04
13 BALCONY 1 stone 5,79 x 0,5 2,90
14 BALCONY 2 stone 0,90 x 0,5 0,45
15 TERRACE stone 85,07 x 0,25 21,27
Altogether 191,90


  Position of the residence on the 4th floor

Position of the residence

General info A43

Rooms: 5-room
Overall area: 191,90 m2
Floor: 4
Exposure: A
Type: 35
Status: -
Yes, I'm interested in this residence!


One of a kind
  • the unique location near the major and finest city sites 
  • the unique architecture as a permanent guarantee for recognition
  • modern design and flat layouts with large glass surfaces and terraces
  • common areas decorated with luxurious and unique greenery, glass dome and panoramic glass elevators
  • uncompromising construction quality, looks and equipment
  • the most energy-efficient    building in the Republic of Croatia (the first energy certificate)
  • over 3-meter ceiling heights in main living areas (3.05 m versus average ceiling height of 265 cm)
  • classical reinforced-concrete structure with high-quality materials and double- and triple-insulation from noise and moisture
Equipment
  • world-class sanitary ware
  • bathroom with massage bathtub (jacuzzi)
  • combination of world-class stones and ceramics
  • world-class parquetry 
  • anti-theft and fire resistant front door
  • solid wood interior doors
  • high class exterior joinery
  • high quality aluminum blinds
  • central heating and cooling using the city's steam
  • floor heating system
  • intelligent apartment technology (infrastructure & moduls for a wide range of solutions)
  • etc.
Even more
  • possibility to buy a storage (more than 1 per residence),
  • possibility to buy a parking place (1 or more per residence),
  • entry from the underground parking area
  • video surveillance of parking lots and building environment
  • round-the-clock supervision service with gatekeepers/guardians
  • common areas for the joint meetings, gatherings, birthday celebrations and other occasions
Personal touches  
top  
FLOORS
 9 flr
 8 flr
 7 flr
 6 flr
 5 flr
 4 flr
  A41
A42
A43
A44
B41
B42
B43
B44
C41
C42
C43
C44
D41
D42
D43
D44
D45
 3 flr
 2 flr
 1 flr
 0 flr
-1 flr
-2 flr
-3 flr
 
Residence A43 Visualization
 
       
  Design - Palete & WEB Marketing