MOJDVOR *****
   // FLOORS & RESIDENCES / the ground floor / Residence A01
Residence A01 Visualization
 
 
Početna stranicaContactMapa weba
MOJDVOR
for whom
location
3D visualization
at construction site
questions/answers
 
FLOORS & RESIDENCES
 
CONTACT/SALE
reserved/sold
 
PERSONAL TOUCHES
relax zone
at service
palace ala carte
warmth and safety
 
MOJDVOR LIFESTYLE
effects your dna
luxurious living
the perfect address
green peace of mind
inteligent building
signature arhitecture
urban vision
 
MOJDVOR imPRESSion
wisdom of the energy
home style magazine
editorials
photo gallery
events
press
 
 
SITE MAP


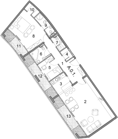
Plan A01.pdf (294 kb) * for details, move the mouse
   over the image
Floorplan, the ground floor.pdf (445 kb)


Num Description Flooring Coefficient Area m2
  1 ENTRANCE HALLWAY parquetry 10,64 x 1 10,64
  2 DINING + LIVING parquetry 31,00 x 1 31,00
  3 KITCHEN ceramics 4,84 x 1 4,84
  4 LARDER ceramics 1,68 x 1 1,68
  5 CHILDREN ROOM 1 parquetry 6,24 x 1 6,24
  6 BATHROOM ceramics 4,06 x 1 4,06
  7 TOILET ceramics 2,08 x 1 2,08
  8 MASTER BEDROOM parquetry 16,12 x 1 16,12
  9 MASTER BATHROOM ceramics 3,34 x 1 3,34
10 WARDROBE ROOM parquetry 2,02 x 1 2,02
11 LOGGIA 1 ceramics 4,41 x 0,75 3,31
12 LOGGIA 2 ceramics 7,23 x 0,75 5,42
13 LOGGIA 3 ceramics 6,94 x 0,75 5,21
Altogether 95,96


  Position of the residence on the ground floor

flat position

General info A01

Rooms: 3-room
Overall area: 80,39 m2
Floor: 0
Exposure: A
Type: 1
Status: -
Yes, I'm interested in this residence!


Uniquenesses
  • the unique location near the major and finest city sites 
  • the unique architecture as a permanent guarantee for recognition
  • modern design and flat layouts with large glass surfaces and terraces
  • common areas decorated with luxurious and unique greenery, glass dome and panoramic glass elevators
  • uncompromising construction quality, looks and equipment
  • he most energy-efficient building in the Republic of Croatia (the first energy certificate)
  • over 3-meter ceiling heights in main living areas (3.05 m versus average ceiling height of 265 cm)
  • classical reinforced-concrete structure with high-quality materials and double- and triple-insulation from noise and moisture
Equipment
  • world-class sanitary ware
  • bathroom with massage bathtub (jacuzzi)
  • combination of world-class stones and ceramics
  • world-class parquetry
  • anti-theft and fire resistant front door
  • solid wood interior doors
  • high class exterior joinery
  • high quality aluminum blinds
  • central heating and cooling using the city's steam
  • floor heating system
  • intelligent apartment technology (infrastructure & moduls for a wide range of solutions)
  • etc.
Even more
  • possibility to buy a storage (more than 1 per residence),
  • possibility to buy a parking place (1 or more per residence),
  • entry from the underground parking area
  • video surveillance of parking lots and building environment
  • round-the-clock supervision service with gatekeepers/guardians
  • common areas for the joint meetings, gatherings, birthday celebrations and other occasions
Personal touches  
top  
FLOORS
 9 flr
 8 flr
 7 flr
 6 flr
 5 flr
 4 flr
 3 flr
 2 flr
 1 flr
 0 flr
  A01
A02
A03
B01
B02
C01
C02
C03
D01
D02
D03
-1 flr
-2 flr
-3 flr
 
Residence A01 Visualization
 
       
  Design - Palete & WEB Marketing