MOJDVOR *****
   // KATOVI I STANOVI / Drugi kat / Stan D24
Stan D24 Vizualizacija stana
 
 
Početna stranicaKontaktMapa weba
MOJDVOR
za koga je Dvor
lokacija
3D vizualizacija
stanje na gradilištu
pitanja/odgovori
 
KATOVI I STANOVI
 
KONTAKT/PRODAJA
rezerviran/prodani
 
MAPA WEBA
 
DVORSKI SERVISI
relax zona
na usluzi
dvor ala carte
toplina ali i sigurnost
 
ŽIVOT U MOMDVORU
djeluje na vaš dnk
na visokoj nozi
u centru zbivanja
u zelenom okruženju
inteligentna zgrada
arhitektura s potpisom
urbanističko viđenje
 
MOJDVOR uTISAK
zašto smo sada nastavili graditi?
home style magazin
editoriali
foto galerija
događanja
iz tiska


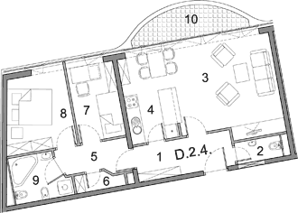
Tlocrt stana D24.pdf (143 kb) *prelaskom miša po tlocrtu stana
  saznajte detalje o pojedinoj prostoriji
Tlocrt drugi kat.pdf (448 kb)


Br Opis prostorije Vrsta poda Koeficijent Površina m2
  1 ULAZNI HODNIK parket 7,10 x 1 7,10
  2 WC ker. pl. 2,01 x 1 2,01
  3 DN. BOR. + BLAG. parket 24,88 x 1 24,88
  4 KUHINJA ker. pl. 4,73 x 1 4,73
  5 HODNIK parket 4,20 x 1 4,20
  6 IZBA ker. pl. 1,57 x 1 1,57
  7 DJEČJA SOBA parket 7,52 x 1 7,52
  8 RODIT. SOBA parket 10,15 x 1 10,15
  9 KUPAONICA ker. pl. 4,90 x 1 4,90
10 BALKON kam. pl. 5,71 x 0,5 2,86
Ukupno 69,92


Stanovi Tipa 28
Naziv stana Kat Status
 D24  Drugi kat -
 D14  Prvi kat -
Ukupno 2 stana Tipa 28


Pozicija stana na katu

Pozicija stana na katu

Podaci o stanu D24

Sobnost: Trosoban
Kvadratura stana: 69,92 m2
Kat: Drugi kat
Krak: D
Tip stana: 28
Status: -
Interesira me ovaj stan!


Posebnosti stana
  • jedinstvena lokacija nadomak svih gradskih sadržaja
  • jedinstvena arhitektura kao trajno jamstvo prepoznatljivosti
  • moderan dizajn, organizacija i raspored stana s velikim staklenim površinama
  • luksuzno i jedinstveno zelenilom uređeni zajednički prostori, sa staklenom kupolom i staklenim panoramskim dizalima
  • beskompromisna kvaliteta gradnje, izgleda i opreme prostora
  • energetski najučinkovitija stambena zgrada u RH (prvi energetski certifikat)
  • visina stambenog prostora od poda do stropa preko tri metra (3,05 m nasuprot prosjeka uobičajene gradnje sa visinom stropa od 265 cm)
  • klasična armirano-betonska konstrukcija s visokokvalitetnim materijalima i dvostrukim i trostrukim izolacijama od buke i vlage.
Opremljenost stana
  • sanitarna oprema prve klase,
  • kupaonica s hidromasažnom kadom (jacuzzi)
  • kombinacija kamena i keramike prve klase,
  • parket prve klase,
  • ulazna vrata - vatrootporna, protuprovalna,
  • unutarnja vrata od masivnog prvorazrednog drva,
  • najkvalitetnija vanjska stolarija,
  • aluminijske rolete
  • centralno grijanje i hlađenje priključeno na gradski parovod
  • sustav podnog grijanja
  • tehnologija inteligentnog stana (infrastruktura i moduli za čitav niz rješenja primjene suvremene tehnologije),
  • itd.
Ostalo
  • mogućnost kupnje spremišta (više od jednog po stanu),
  • mogućnost kupnje garažnih mjesta (više od jednog po stanu),
  • suhi ulaz iz zone parkiranja (podzemne garaže) u zonu stanovanja,
  • video nadzor garažnog i javnog prostora,
  • servis za nadzor s 24 satnim nadzorom vratara/čuvara,
  • zajedničke prostorije (klupske prostorije zgrade) za zajednička okupljanja, druženja, proslave rođendana i druge prigode).
Dvorski servisi
vrh  
ETAŽE
 9 kat
 8 kat
 7 kat
 6 kat
 5 kat
 4 kat
 3 kat
 2 kat
  A21
A22
A23
A24
A25
B21
B22
B23
B24
C21
C22
C23
C24
C25
D21
D22
D23
D24
D25
D26
 1 kat
 0 kat
-1 kat
-2 kat
-3 kat
 
Stan D24 Vizualizacija stana
 
       
  Dizajn, koncept i izrada web stranica - Palete & WEB Marketing