MOJDVOR *****
   // KATOVI I STANOVI / Prizemlje / Stan C01
Stan C01 Vizualizacija stana
 
 
Početna stranicaKontaktMapa weba
MOJDVOR
za koga je Dvor
lokacija
3D vizualizacija
stanje na gradilištu
pitanja/odgovori
 
KATOVI I STANOVI
 
KONTAKT/PRODAJA
rezerviran/prodani
 
MAPA WEBA
 
DVORSKI SERVISI
relax zona
na usluzi
dvor ala carte
toplina ali i sigurnost
 
ŽIVOT U MOMDVORU
djeluje na vaš dnk
na visokoj nozi
u centru zbivanja
u zelenom okruženju
inteligentna zgrada
arhitektura s potpisom
urbanističko viđenje
 
MOJDVOR uTISAK
zašto smo sada nastavili graditi?
home style magazin
editoriali
foto galerija
događanja
iz tiska


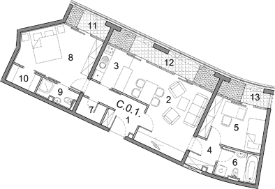
Tlocrt stana C01.pdf (234 kb) *prelaskom miša po tlocrtu stana
  saznajte detalje o pojedinoj prostoriji
Tlocrt prizemlje.pdf (445 kb)


Br Opis prostorije Vrsta poda Koeficijent Površina m2
  1 ULAZNI HODNIK parket 6,35 x 1 6,35
  2 DN. BOR. + BLAG. parket 18,85 x 1 18,85
  3 KUHINJA ker. pl. 4,82 x 1 4,82
  4 HODNIK parket 3,06 x 1 3,06
  5 DJEČJA SOBA parket 9,78 x 1 9,78
  6 KUPAONICA ker. pl. 4,17 x 1 4,17
  7 IZBA ker. pl. 1,82 x 1 1,82
  8 RODIT. SOBA parket 14,08 x 1 14,08
  9 KUP. ROD. ker. pl. 2,35 x 1 2,35
10 GARDEROBA parket 2,07 x 1 2,07
11 LOGGIA 1 ker. pl. 2,90 x 0,75 2,18
12 LOGGIA 2 ker. pl. 7,57 x 0,75 5,68
13 LOGGIA 3 ker. pl. 3,31 x 0,75 2,48
Ukupno 77,69


Pozicija stana u prizemlju

Pozicija stana u prizemlju

Podaci o stanu C01

Sobnost: Trosoban
Kvadratura stana: 77,69 m2
Kat: Prizemlje
Krak: C
Tip stana: 6
Status: -
Interesira me ovaj stan!


Posebnosti stana
  • jedinstvena lokacija nadomak svih gradskih sadržaja
  • jedinstvena arhitektura kao trajno jamstvo prepoznatljivosti
  • moderan dizajn, organizacija i raspored stana s velikim staklenim površinama
  • luksuzno i jedinstveno zelenilom uređeni zajednički prostori, sa staklenom kupolom i staklenim panoramskim dizalima
  • beskompromisna kvaliteta gradnje, izgleda i opreme prostora
  • energetski najučinkovitija stambena zgrada u RH (prvi energetski certifikat)
  • visina stambenog prostora od poda do stropa preko tri metra (3,05 m nasuprot prosjeka uobičajene gradnje sa visinom stropa od 265 cm)
  • klasična armirano-betonska konstrukcija s visokokvalitetnim materijalima i dvostrukim i trostrukim izolacijama od buke i vlage.
Opremljenost stana
  • sanitarna oprema prve klase,
  • kupaonica s hidromasažnom kadom (jacuzzi)
  • kombinacija kamena i keramike prve klase,
  • parket prve klase,
  • ulazna vrata - vatrootporna, protuprovalna,
  • unutarnja vrata od masivnog prvorazrednog drva,
  • najkvalitetnija vanjska stolarija,
  • aluminijske rolete
  • centralno grijanje i hlađenje priključeno na gradski parovod
  • sustav podnog grijanja
  • tehnologija inteligentnog stana (infrastruktura i moduli za čitav niz rješenja primjene suvremene tehnologije),
  • itd.
Ostalo
  • mogućnost kupnje spremišta (više od jednog po stanu),
  • mogućnost kupnje garažnih mjesta (više od jednog po stanu),
  • suhi ulaz iz zone parkiranja (podzemne garaže) u zonu stanovanja,
  • video nadzor garažnog i javnog prostora,
  • servis za nadzor s 24 satnim nadzorom vratara/čuvara,
  • zajedničke prostorije (klupske prostorije zgrade) za zajednička okupljanja, druženja, proslave rođendana i druge prigode).
Dvorski servisi
vrh  
ETAŽE
 9 kat
 8 kat
 7 kat
 6 kat
 5 kat
 4 kat
 3 kat
 2 kat
 1 kat
 0 kat
  A01
A02
A03
B01
B02
C01
C02
C03
D01
D02
D03
-1 kat
-2 kat
-3 kat
 
Stan C01 Vizualizacija stana
 
       
  Dizajn, koncept i izrada web stranica - Palete & WEB Marketing