MOJDVOR *****
   // KATOVI I STANOVI / Četvrti kat / Stan A43
Stan A43 Vizualizacija stana
 
 
Početna stranicaKontaktMapa weba
MOJDVOR
za koga je Dvor
lokacija
3D vizualizacija
stanje na gradilištu
pitanja/odgovori
 
KATOVI I STANOVI
 
KONTAKT/PRODAJA
rezerviran/prodani
 
MAPA WEBA
 
DVORSKI SERVISI
relax zona
na usluzi
dvor ala carte
toplina ali i sigurnost
 
ŽIVOT U MOMDVORU
djeluje na vaš dnk
na visokoj nozi
u centru zbivanja
u zelenom okruženju
inteligentna zgrada
arhitektura s potpisom
urbanističko viđenje
 
MOJDVOR uTISAK
zašto smo sada nastavili graditi?
home style magazin
editoriali
foto galerija
događanja
iz tiska


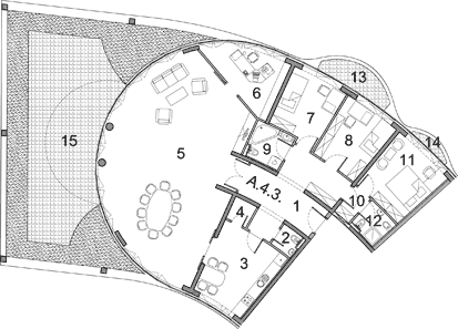
Tlocrt stana A43.pdf (365 kb) *prelaskom miša po tlocrtu stana
  saznajte detalje o pojedinoj prostoriji
Tlocrt četvrti kat.pdf (540 kb)


Br Opis prostorije Vrsta poda Koeficijent Površina m2
  1 ULAZNI HODNIK parket 17,97 x 1 17,97
  2 WC ker. pl. 1,65 x 1 1,65
  3 KUHINJA ker. pl. 15,33 x 1 15,33
  4 IZBA ker. pl. 1,62 x 1 1,62
  5 DN. BOR. + BLAG. parket 74,16 x 1 74,16
  6 RADNA SOBA parket 11,49 x 1 11,49
  7 DJEČJA SOBA 1 parket 11,15 x 1 11,15
  8 DJEČJA SOBA 2 parket 11,54 x 1 11,54
  9 KUPAONICA ker. pl. 4,30 x 1 4,30
10 HODNIK parket 1,88 x 1 1,88
11 RODIT. SOBA parket 13,15 x 1 13,15
12 KUP. ROD. ker. pl. 3,04 x 1 3,04
13 BALKON 1 kam. pl. 5,79 x 0,5 2,90
14 BALKON 2 kam. pl. 0,90 x 0,5 0,45
15 TERASA kam. pl. 85,07 x 0,25 21,27
Ukupno 191,90


Pozicija stana na katu

Pozicija stana na katu

Podaci o stanu A43

Sobnost: Peterosoban
Kvadratura stana: 191,90 m2
Kat: Četvrti kat
Krak: A
Tip stana: 35
Status: -
Interesira me ovaj stan!


Posebnosti stana
  • jedinstvena lokacija nadomak svih gradskih sadržaja
  • jedinstvena arhitektura kao trajno jamstvo prepoznatljivosti
  • moderan dizajn, organizacija i raspored stana s velikim staklenim površinama
  • luksuzno i jedinstveno zelenilom uređeni zajednički prostori, sa staklenom kupolom i staklenim panoramskim dizalima
  • beskompromisna kvaliteta gradnje, izgleda i opreme prostora
  • energetski najučinkovitija stambena zgrada u RH (prvi energetski certifikat)
  • visina stambenog prostora od poda do stropa preko tri metra (3,05 m nasuprot prosjeka uobičajene gradnje sa visinom stropa od 265 cm)
  • klasična armirano-betonska konstrukcija s visokokvalitetnim materijalima i dvostrukim i trostrukim izolacijama od buke i vlage.
Opremljenost stana
  • sanitarna oprema prve klase,
  • kupaonica s hidromasažnom kadom (jacuzzi)
  • kombinacija kamena i keramike prve klase,
  • parket prve klase,
  • ulazna vrata - vatrootporna, protuprovalna,
  • unutarnja vrata od masivnog prvorazrednog drva,
  • najkvalitetnija vanjska stolarija,
  • aluminijske rolete
  • centralno grijanje i hlađenje priključeno na gradski parovod
  • sustav podnog grijanja
  • tehnologija inteligentnog stana (infrastruktura i moduli za čitav niz rješenja primjene suvremene tehnologije),
  • itd.
Ostalo
  • mogućnost kupnje spremišta (više od jednog po stanu),
  • mogućnost kupnje garažnih mjesta (više od jednog po stanu),
  • suhi ulaz iz zone parkiranja (podzemne garaže) u zonu stanovanja,
  • video nadzor garažnog i javnog prostora,
  • servis za nadzor s 24 satnim nadzorom vratara/čuvara,
  • zajedničke prostorije (klupske prostorije zgrade) za zajednička okupljanja, druženja, proslave rođendana i druge prigode).
Dvorski servisi
vrh  
ETAŽE
 9 kat
 8 kat
 7 kat
 6 kat
 5 kat
 4 kat
  A41
A42
A43
A44
B41
B42
B43
B44
C41
C42
C43
C44
D41
D42
D43
D44
D45
 3 kat
 2 kat
 1 kat
 0 kat
-1 kat
-2 kat
-3 kat
 
Stan A43 Vizualizacija stana
 
       
  Dizajn, koncept i izrada web stranica - Palete & WEB Marketing