MOJDVOR *****
   // KATOVI I STANOVI / Treći kat / Stan A33
Stan A33 Vizualizacija stana
 
 
Početna stranicaKontaktMapa weba
MOJDVOR
za koga je Dvor
lokacija
3D vizualizacija
stanje na gradilištu
pitanja/odgovori
 
KATOVI I STANOVI
 
KONTAKT/PRODAJA
rezerviran/prodani
 
MAPA WEBA
 
DVORSKI SERVISI
relax zona
na usluzi
dvor ala carte
toplina ali i sigurnost
 
ŽIVOT U MOMDVORU
djeluje na vaš dnk
na visokoj nozi
u centru zbivanja
u zelenom okruženju
inteligentna zgrada
arhitektura s potpisom
urbanističko viđenje
 
MOJDVOR uTISAK
zašto smo sada nastavili graditi?
home style magazin
editoriali
foto galerija
događanja
iz tiska


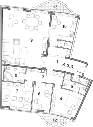
Tlocrt stana A33.pdf (180 kb) *prelaskom miša po tlocrtu stana
  saznajte detalje o pojedinoj prostoriji
Tlocrt treći kat.pdf (461 kb)


Br Opis prostorije Vrsta poda Koeficijent Površina m2
  1 ULAZNI HODNIK parket 13,59 x 1 13,59
  2 WC ker. pl. 2,05 x 1 2,05
  3 HODNIK parket 8,84 x 1 8,84
  4 RODIT. SOBA parket 14,72 x 1 14,72
  5 KUP. ROD. ker. pl. 4,83 x 1 4,83
  6 DJEČJA SOBA 1 parket 9,91 x 1 9,91
  7 DJEČJA SOBA 2 parket 15,43 x 1 15,43
  8 KUPAONICA ker. pl. 6,01 x 1 6,01
  9 DN. BOR. + BLAG. parket 48,60 x 1 48,60
10 KUHINJA ker. pl. 13,83 x 1 13,83
11 IZBA ker. pl. 1,75 x 1 1,75
12 BALKON 1 kam. pl. 3,69 x 0,5 1,85
13 BALKON 2 kam. pl. 4,57 x 0,5 2,29
Ukupno 143,70


Stanovi Tipa 14
Naziv stana Kat Status
 A33  Treći kat -
 A23  Drugi kat -
 A13  Prvi kat -
Ukupno 3 stana Tipa 14


Pozicija stana na katu

Pozicija stana na katu

Podaci o stanu A33

Sobnost: Četverosoban
Kvadratura stana: 143,70 m2
Kat: Treći kat
Krak: A
Tip stana: 14
Status: -
Interesira me ovaj stan!


Posebnosti stana
  • jedinstvena lokacija nadomak svih gradskih sadržaja
  • jedinstvena arhitektura kao trajno jamstvo prepoznatljivosti
  • moderan dizajn, organizacija i raspored stana s velikim staklenim površinama
  • luksuzno i jedinstveno zelenilom uređeni zajednički prostori, sa staklenom kupolom i staklenim panoramskim dizalima
  • beskompromisna kvaliteta gradnje, izgleda i opreme prostora
  • energetski najučinkovitija stambena zgrada u RH (prvi energetski certifikat)
  • visina stambenog prostora od poda do stropa preko tri metra (3,05 m nasuprot prosjeka uobičajene gradnje sa visinom stropa od 265 cm)
  • klasična armirano-betonska konstrukcija s visokokvalitetnim materijalima i dvostrukim i trostrukim izolacijama od buke i vlage.
Opremljenost stana
  • sanitarna oprema prve klase,
  • kupaonica s hidromasažnom kadom (jacuzzi)
  • kombinacija kamena i keramike prve klase,
  • parket prve klase,
  • ulazna vrata - vatrootporna, protuprovalna,
  • unutarnja vrata od masivnog prvorazrednog drva,
  • najkvalitetnija vanjska stolarija,
  • aluminijske rolete
  • centralno grijanje i hlađenje priključeno na gradski parovod
  • sustav podnog grijanja
  • tehnologija inteligentnog stana (infrastruktura i moduli za čitav niz rješenja primjene suvremene tehnologije),
  • itd.
Ostalo
  • mogućnost kupnje spremišta (više od jednog po stanu),
  • mogućnost kupnje garažnih mjesta (više od jednog po stanu),
  • suhi ulaz iz zone parkiranja (podzemne garaže) u zonu stanovanja,
  • video nadzor garažnog i javnog prostora,
  • servis za nadzor s 24 satnim nadzorom vratara/čuvara,
  • zajedničke prostorije (klupske prostorije zgrade) za zajednička okupljanja, druženja, proslave rođendana i druge prigode).
Dvorski servisi
vrh  
ETAŽE
 9 kat
 8 kat
 7 kat
 6 kat
 5 kat
 4 kat
 3 kat
  A31
A32
A33
A34
A35
B31
B32
B33
B34
C31
C32
C33
C34
D31
D32
D33
D34
D35
 2 kat
 1 kat
 0 kat
-1 kat
-2 kat
-3 kat
 
Stan A33 Vizualizacija stana
 
       
  Dizajn, koncept i izrada web stranica - Palete & WEB Marketing